
|
Early Records Report
of the standing committee on common schools, adopted by the district council of the
Midland District, at the May session, 1842 The Committee on Common Schools bed leave
respectfully to report: 1. That having examined the petition of
Hugh Carnahan and others, relative to School District No. 7 in the 3d
concession of Fredericksburgh additional, it is the opinion of the Committee that the prayer of the petitioners,
as far as relates to the boundary of the said district, be allowed, and that
that part of the petition praying for exemption from the requirements of the
School Act, be not granted, as it is repugnant to the statute. 2. That the prayer of the petition of
William Diamond and others has been fully acceded to in the preceding clause. 3. That the prayer of the petition of
Philip Garrison and others, for an alteration in School District No. 7, and
extending it to Lot N. 2, in Fredericksburgh original, cannot be acceded to,
as it would entirely prevent the inhabitants of District No. 8, from enjoying
the benefits of the Act, and we also find the names of some of the
petitioners annexed to a subsequent petition against it. Upper Canada Herald
July 26 1842 |
|
|
1860 Wallings Map The original Hayburn School site
was on land owned by William Rikley, on the Bay shore, near the site of the Hayburn Church at the
end of [now] Township Road #1. |
|
|
1878 Meacham’s Atlas At some point the
school building was moved to the west, to Lot 4,
Concession 3 Additional. |
|
|
Hayburn
Schoolhouse 1930s |
|
|
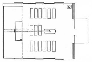
Layout
of Hayburn School as provided by Jeanne
Clarke- Corbett, teacher in the 1940s. |
|
|
SS7
Hayburn c1910s Students not identified |
|
|
SS
7 Hayburn - Spring 1940 Grade 8 Back Row: Dalton Wagar, Duane Whitmarsh,
Leone Loyst, Bill Loyst. Front Row: Dapheen
Whitmarsh, Clifford Brooks. At Door: Shirley Wagar. |
|
|
SS
7 Hayburn - Spring 1940 (Arbour Day) Back Row: Shirley Wagar, Harvey Benn,
Glenn Brooks, Orville Benn, Frances Brooks, Orville Brooks,
Bev Wagar. Front Row: Erica Whitmarsh, Donny
Benn, George Wickett, Jack Furse. |
|
|
SS
7 Hayburn - Spring 1940 (Arbour Day) From Left: Francis Brooks, Shirley
Wagar, Leone Loyst, Orville Brooks, George Wickett |
|
|
SS
7 Hayburn - Spring 1940 L-R: Orville Benn, Donny Benn, Glen Brooks, Bill
Loyst, Dalton Wagar, Clifford Brooks, Jack Furse, Harvey Benn, Bev Wagar |
|
|
SS
7 Hayburn – June 1941 From Left: Shirley Wagar Jeanne Clark (Teacher) Frances Brooks |
SS
7 Hayburn - Spring 1940 Back Row: Leone Loyst, Francis Brooks. Front Row: Erica Whitmarsh, Bernice
Benn, Dapheen Whitmarsh, Shirley Wagar. |
|
SS
7 Hayburn – June 1941 Back Row: Bernice Benn, Jeanne Clark (T), Francis Brooks, Shirley Wagar, Harvey Benn, len Brooks, Orville Brooks.
Front Row: George Wickett, Donny
Benn, Erica Whitmarsh, Jack Furse. Absent: Bud Hawley |
SS
7 Hayburn - Spring 1940 Back Row: Clifford Brooks, Glen Brooks,
Bill Loyst. 2nd Row: Leone
Loyst, Duane Whitmarsh, Dalton Wagar, Harvey Benn 3rd Row: Dapheen
Whitmarsh, Francis Brooks 4th Row: Shirley Wagar, Bernice Benn, Orville Brooks Front Row: Erica Whitmarsh, Don Benn, George Wickett,
Jack Furse. |
|
SS
7 Hayburn – Early 1940s Back Row: Jean Peters, Bud Peters, Jean
Peters (2nd), Hazel Benn Middle Row: Mary Furse,
Allan Wagar, Marie Benn, Bud Hawley, Lois Brooks Front Row: Don Brooks, Fern Magee, Carson
Brooks |
|
|
Promotions & Honour Rolls |
|
|
South Fredericksburgh S.S. #7 - Hayburn |
|
|
Publication
Date Teacher |
Student
Names |
|
Mar 22 1895 E.N. Wagar |
V Class –
Eddie Embury IV Class
– Foster Crozier, Hester Garrison, ---, --- III Class
– Henry Garrison, Lena Wagar, Addie Carroll, Thomas Needham, Lydia Brown,
Nelson Brown, Nellie Hillier II Class
– Walter Loyst, George Brooks, Julia Carroll, Charlotte Vandewater, Willie
Carter, Henry Loyst, Irvine Brooks, Lillie Noakels |
|
May 10 1895 E.N. Wagar |
Class IV
– Foster Crozier, Charley Loyst, Mabel Loyst, Hester Garrison, Nellie Loyst Class III
– Henry Garrison, Nellie Hillier, Lena Wagar, Ida Windover, Lyda Brown Class II
–Walter Loyst, Henry Loyst, Irvine Brooks, George Brooks Charlotte
Vandewater, Hester Dafoe Class I –
Henrietta Brown, Bruce Brown |
|
Oct 6 1911 G. A. Rendell |
Class IV
– Mary Dickson, Maude Post, Margaret Magee, hazel Thompson, Edith Magee Class III
– Leone Thompson, Elsie Magee, Clara Brooks, Myrtle Dickson, Hazel Lloyd Class II
– Bernice Thompson, Allie Lloyd Class I –
Burton Loyst, George Dickson, Aubrey Brooks Primer –
Kenneth Dickson, Ida Brooks, Victoria Soles, George Soles, Charles Soles |
|
Jan 12 1912 G.A. Rendell |
Class IV
– Margaret Magee, Mary Dickson, Maud Post, Hazel Thompson, Edith Magee, Bert
Lloyd Class III
– Elsie Magee, Leone Thompson, Myrtle Dickson, Clara Brooks, Arthur Brooks,
Hazel Lloyd, Hazel Brooks Class II –
Bernice Thompson, Allie Lloyd Class I –
George Dickson, Burton Loyst, Aubrey Brooks Primer –
Kenneth Dickson, Victoria Soles, Ralph Soles, George Soles, Charles Soles |
|
Feb 9 1912 G.A. Rendell |
Class IV,
Sr. – Margaret Magee, Mary Dickson, Maud Post, Hazel Thompson, Edith Magee Class
III, Sr. – Arthur Brooks Class
III, Jr. – Leone Thompson, Elsie Magee, Clara Brooks, Myrtle Dickson, Hazel
Brooks, Hazel Lloyd Class II,
Sr. – Bernice Thompson, Allie Lloyd Class II,
Jr. – George Dickson, Burton Loyst Class I –
Aubrey Brooks Primer –
Kenneth Dickson, Victoria Soles, Ralph Soles, George Soles |
|
May 3 1912 G.A. Rendell |
Class IV
– Margaret Magee, Mary Dickson, Maud Post, Hazel Thompson, Edith Magee Class
III, Sr. – Arthur Brooks, Hazel Brooks Class
III, Jr. – Elsie Magee, Clara Brooks, Leone Thompson, Myrtle Dickson, Hazel
Lloyd Class II,
Sr. – Bernice Thompson, Allie Lloyd Class II,
Jr. – George Dickson, Burton Loyst Class I –
Aubrey Brooks Primer –
Kenneth Dickson, Annabelle Dickson, Fred Dickson, Harold Magee, Ida Brooks |
|
Nov 8 1912 Gertrude A. Rendell |
Class V –
Mary Dickson, Maude Post Class IV
– Edith Magee Class III
– Myrtle Dickson, Clara Brooks Class II
– George Dickson, Burton Loyst Class I –
Aubrey Brooks Primer –
Fred Dickson, Annabelle Dickson, Harold Magee, Kenneth
Dickson, Ida Brooks, Victoria Soles |
|
Mar 14 1913 Marion Magee |
Class V –
Mary Dickson, Margaret Magee Class IV
– Hazel Thompson, Edith Magee Class
III, Sr. – Elsie Magee, Leone Thompson, Myrtle Dickson, Clara
Brooks Class
III, Jr. – Lula Lloyd Class II
– Bernice Thompson, Allie Lloyd, George Dickson Class I,
Sr. – Annabella Dickson, Fred Dickson, Harold Magee, Aubrey Brooks, Kenneth
Dickson Class I,
Jr. – Ida Brooks, Victoria Soules, George Soules Primer –
Charlie Soules |
|
May 9 1913 Marion Magee |
Class V.
– Mary Dickson Class IV
– Edith Magee Class
III, Sr. – Elsie Magee, Clara Brooks, Myrtle Dickson, Leone
Thompson Class
III, Jr. – Lula Lloyd Class II
– Bernice Thompson, George Dickson, Allie Lloyd Class I,
Sr. – Fred Dickson, Annabella Dickson, Harold Magee, Aubrey Brooks, Kenneth
Dickson Class I,
Jr. – Marie Cummings, Ida Brooks Primer –
Mildred Cummings |
|
Dec 31 1926 B.M. Wilson |
V. Class
– Douglas Magee, Eleanor Sills IV. Class
– Norman Thompson, Stewart Loyst, Margaret Sills, Edna Platt, Rhoda Loyst, Meda Benn III.
Class – Frank Peters, Everett Magee II. Class
– Grace Magee, Morris Loyst, Morris Sills I. Class
Sr. – Morley Peters, Evelyn Magee, Falter Platt I. Class
Jr. – Anna Sills, Eleanor Magee Pr. –
Marjorie Brooks, Eva Brooks, Geraldine Loyst |
|
Apr 29 1927 B.M. Wilson |
V. Class
– Eleanor Sills, Douglas Magee IV Class
– Norman Thompson, Stewart Loyst, Margaret Sills, Rhoda Loyst, Edna Platt, Meda Benn III Class
– Frank Peters, Everett Magee II Class,
Sr. – Grace Magee, Morris Loyst, Morris Sills II Class,
Jr. A - Morley Peters, Evelyn Magee,
Walter Platt II Class,
Jr. B – Eleanor Magee, Anna Sills Primer –
Marjorie Brooks, Eva Brooks, Geraldine Loyst Kg. Pr. –
Norman Brooks |
|
Jan 2 1929 Edith I. Patterson |
Sr. IV – Meda Belle Benn Jr. IV –
Grace Magee, Morris Loyst Sr. III –
Morris Sills Jr. III –
Morley Peters, Eleanor Magee, Anna Sills, Walter Platt Jr. II –
Marjorie Brooks, Eva Brooks, Geraldine Loyst I –
Marion Brooks, Norman Brooks, Irene Wellington, Percy Wellington Pr. –
Walter Brooks, Dorothy Magee Jr. Pr. –
Betty Loyst |
|
1929 July 10 Edith Patterson |
Sr. IV –
Grace Magee, Morris Loyst Jr. IV –
Eleanor Magee, Anna Sills, Morley Peters, Morris Sills Sr. III –
Walter Platt Jr. III –
Marjorie Brooks, Eva Brooks Sr. II –
Geraldine Loyst Jr. II –
Dorothy Magee, Marion Brooks, Norman Brooks, Irene
Wellington Sr. I –
Percy Wellington Sr. Pr. –
Walter Platt, Betty Loyst Jr. Pr. –
Phyllis Brooks, Walter Wagar |
|
Apr 30 1930 Edith Patterson |
Form V –
Edna Platt Senior IV
– Grace Magee, Morris Loyst Junior IV
– Eleanor Magee, Morris Sills, Morley Peters, Anna Sills Senior
III – Walter Platt Junior
III – Marjorie Brooks, Eva Brooks Senior II
– Geraldine Loyst Junior II
– Dorothy Magee, Marion Brooks, Norman Brooks Junior I
– Walter Brooks Senior
Primer – Phyllis Brooks, Betty Loyst Junior
Primer – Franklin Magee, Walter Wagar, Gerald Magee, Jean Wagar |
|
July 9 1930 Edith I. Patterson |
Senior IV
– Eleanor Magee, Morris Sills, Morley Peters, Anna Sills Junior IV
– Marjorie Brooks, Eva Brooks, Walter Platt Junior
III – Dorothy Magee, Marion Brooks, Geraldine Loyst, Norman Brooks Senior I
– Walter Brooks Junior I
- Betty Loyst, Phyllis Brooks Senior
Primer – Franklin Magee, Walter Wagar, Gerald Magee, Jean Wagar |
|
Dec 30 1936 Margaret Donaldson |
Sr. IV –
Bobby Dickson, Betty Loyst, Phyllis Brooks, Jean Wagar, Walter Wagar Jr. IV –
Dalton Wagar, Leone Loyst, Clifford Brooks, Billy Loyst Jr. II –
Frances Books, Orvil Benn, Bernice Benn, Shirley
Wagar Jr. I –
Glenn Brooks, Beverly Wagar, Harvey Benn Primer –
Colleen Moore |
|
Teachers at S.S. 7 South Fredericksburgh |
|||||
|
Year |
Board
Secretary |
Teacher |
Building |
Average Attendance |
Salary |
|
1903 |
|
Leone Loyst |
|
|
|
|
June 1911 |
J.T. Loyst |
Laura N. Robertson |
Frame |
11 |
350 |
|
June 1912 |
J.T. Loyst |
Gertrude Rendell |
Frame |
13 |
350 |
|
Nov 1913 |
J.G. Loyst |
Marion Magee |
Frame |
15 |
350 |
|
June 1914 |
James T. Loyst |
Etta P. Lewis |
Frame |
15 |
400 |
|
Nov 1915 |
Henry Loyst |
Annie Cooper |
Frame |
16 |
600 |
|
Nov 1916 |
Henry Loyst |
Annie Cooper |
Frame |
18 |
600 |
|
Nov 1917 |
Henry Loyst |
Mabel Mills |
Frame |
20 |
600 |
|
Nov 1918 |
Henry Loyst |
Hester May |
Frame |
20 |
500 |
|
Nov 1919 |
Henry Loyst |
Hester May |
Frame |
15 |
500 |
|
Nov 1920 |
Henry Loyst |
Hester May |
Frame |
19 |
700 |
|
Nov 1922 |
Henry Loyst |
George Parrott |
Frame |
23 |
900 |
|
Nov 1923 |
James Rikley |
Ruth McCormick |
Frame |
20 |
800 |
|
Nov 1924 |
James Rikley |
Lorne Daverne |
Frame |
19 |
800 |
|
Nov 1925 |
James Rikley |
Ruth McCormick |
Frame |
17 |
900 |
|
Nov 1926 |
Rylance Loyst |
Beryl Wilson |
Frame |
17 |
800 |
|
Nov 1927 |
R.J. Magee |
Bernice Bushfield |
Frame |
17 |
800 |
|
Nov 1928 |
R.J. Magee |
Edith Patterson |
Frame |
19 |
900 |
|
Nov 1929 |
Herbert Loyst |
Edith I. Patterson |
Frame |
18 |
900 |
|
Nov 1930 |
Herbert Loyst |
Marjorie Huffman |
Frame |
17 |
850 |
|
Nov 1931 |
Herbert Loyst |
Marjorie Huffman |
Frame |
7 |
900 |
|
Nov 1932 |
A.B. Loyst |
Mildred Rikley |
Frame |
22 |
750 |
|
Nov 1934 |
Arthur B. Loyst |
Grace E. Loyst |
Frame |
17 |
500 |
|
Nov 1935 |
Arthur B. Loyst |
Grace E. Loyst |
Frame |
16 |
500 |
|
Nov 1936 |
Arthur B. Loyst |
Margaret J. Donaldson |
Frame |
16 |
500 |
|
Nov 1937 |
Arthur B. Loyst |
Margaret Donaldson |
Frame |
14 |
500 |
|
Nov 1938 |
Arthur B. Loyst |
Margaret J. Donaldson |
Frame |
15 |
600 |
|
Nov 1939 |
Arthur Loyst |
Jeanne Clark |
Frame |
18 |
600 |
|
Nov 1940 |
W.G. Gilbert |
Jeanne Clark |
Frame |
17 |
600 |
|
Nov 1941 |
W.G. Gilbert |
S. Mary E. Mellow |
Frame |
-- |
750 |
|
Nov 1942 |
W.G. Gilbert |
Fraser H. Hogle |
Frame |
-- |
900 |
|
Nov 1943 |
W.G. Gilbert |
Ruth E. Wright |
Frame |
7 |
1000 |
|
Nov 1944 |
W.G. Gilbert |
Mrs. Helen Parm |
Frame |
8 |
1200 |
|
Nov 1945 |
W.G. Gilbert |
Olive Shillington |
Frame |
10 |
1200 |
|
Nov 1946 |
W.G. Gilbert |
Elizabeth Porter |
Frame |
10 |
1300 |
|
Nov 1947 |
CLOSED – pupils moved to #4
(Parma) and #5 (Sillsville) |
||||
|
May
8 1948 Kingston Whig Standard |